Khám phá 35+ mẫu nhà cấp 4 gác lửng nổi bật với thiết kế hiện đại, tối ưu hóa không gian và ngân sách. Mẫu nhà cấp 4 có gác lửng đang trở thành xu thế được nhiều người lựa chọn hiện nay thay thế cho mẫu nhà cấp 4 truyền thống. Mỗi công trình là sự kết hợp hài hòa giữa công năng tiện nghi và thẩm mỹ tinh tế mang đến trải nghiệm sống chất lượng. Dù diện tích hạn chế, mẫu nhà gác lửng vẫn toát lên vẻ đẹp thanh lịch và gần gũi. Đây là lựa chọn lý tưởng cho những ai mong muốn một không gian sống tiện nghi nhưng vẫn tiết kiệm chi phí.
Ưu điểm của nhà cấp 4 gác lửng
Nhà cấp 4 gác lửng là dạng kiến trúc phát triển từ mẫu nhà cấp 4 truyền thống, được thiết kế thêm tầng lửng để tối ưu hoá diện tích ngôi nhà và không làm thay đổi quá nhiều kết cấu tổng thể. Sự kết hợp giữa kiến trúc thông minh và tính thẩm mỹ tinh tế giúp nhà cấp 4 gác lửng ngày càng trở thành xu hướng được ưa chuộng trong thiết kế nhà đẹp hiện đại. Dưới đây là những chia sẻ về ưu điểm của mẫu nhà này mà bạn có thể tham khảo như:
– Diện tích sử dụng của nhà cấp 4 có gác lửng lớn hơn so với mẫu nhà cấp 4 thông thường
– Nhà cấp 4 có gác lửng là giải pháp kiến trúc thông minh, đáp ứng nhu cầu sống tiện nghi trong diện tích giới hạn. Tầng lửng giúp mở rộng không gian sử dụng mà không tốn thêm diện tích xây dựng, từ đó tiết kiệm chi phí hiệu quả.
– Với thiết kế linh hoạt, mẫu nhà này phù hợp với nhiều phong cách – từ hiện đại tối giản đến cổ điển tinh tế,… Nhà cấp 4 gác lửng 2 phòng ngủ, 3 phòng ngủ, 4 phòng ngủ,… mái bằng, mái thái, mái nhật,…
– Thời gian thi công nhanh chóng cũng là điểm cộng lớn, đặc biệt thích hợp với các gia đình trẻ hoặc gia chủ yêu thích sự tối ưu trong đầu tư xây dựng.
– Thích hợp với nhiều diện tích đất dù là đất rộng hay đất hẹp vẫn đáp ứng đủ nhu cầu sử dụng của chủ đầu tư.
– Chi phí xây dựng không quá lớn từ 500 – 700 triệu đồng là bạn có thể sở hữu ngay một ngôi nhà như ý.

Khám phá các mẫu nhà cấp 4 gác lửng đẹp, sang trọng xu hướng mới nhất
Cùng Chất Lượng HOMES điểm qua các kiểu nhà cấp 4 gác lửng đẹp đang được ưa chuộng hiện nay – nơi vẻ đẹp kiến trúc được tôn vinh qua từng đường nét, từng không gian sống được bài trí chỉn chu và khoa học. Những mẫu nhà cấp 4 có gác lửng không chỉ chinh phục người xem bằng hình thức thẩm mỹ mà còn thỏa mãn nhu cầu sinh hoạt đa dạng của các gia đình Việt.
Mẫu nhà cấp 4 1 phòng ngủ gác lửng
Thiết kế tối giản nhưng tinh tế, mẫu nhà cấp 4 có gác lửng 1 phòng ngủ lý tưởng cho cặp vợ chồng trẻ hoặc người độc thân yêu thích không gian riêng tư. Gác lửng được bố trí thông minh làm nơi nghỉ ngơi hoặc không gian làm việc trong khi tầng trệt giữ vai trò sinh hoạt chính tạo sự liền mạch và tiện nghi tối đa.

Mẫu nhà cấp 4 gác lửng 2 phòng ngủ
Với bố cục hài hòa, mẫu nhà này mang đến không gian sống ấm cúng và riêng tư cho gia đình nhỏ. Gia chủ có thể thiết kế nhà cấp 4 2 phòng ngủ trên tầng lửng hoặc 1 phòng ngủ ở tầng trệt và 1 phòng ngủ trên tầng lửng. Thông thường, tầng lửng sẽ được tận dụng để bố trí phòng ngủ phụ giúp phân chia công năng hiệu quả mà vẫn giữ được sự thông thoáng, gọn gàng. Với diện tích xây dựng 5×10 đến 5x16m đây là lựa chọn phổ biến tại các khu dân cư hiện đại hoặc vùng ven đô thị.

Mẫu nhà cấp 4 3 phòng ngủ gác lửng
Với diện tích xây dựng vào khoảng 70-80m2, mẫu nhà cấp 4 3 phòng ngủ gác lửng thích hợp với gia đình từ 3–5 thành viên nhằm sự cân bằng giữa diện tích, công năng và tính thẩm mỹ. Không gian sinh hoạt chung và riêng được bố trí hợp lý, tối đa hóa công dụng của tầng lửng mà không gây cảm giác chật chội, bí bách.

Mẫu nhà cấp 4 gác lửng 4 phòng ngủ
Với thiết kế mở rộng thường xây trên diện tích đất khoảng 100m2, mẫu nhà cấp 4 4 phòng ngủ gác lửng thích hợp cho đại gia đình đa thế hệ. Các phòng ngủ được phân bổ đều giữa tầng trệt và gác lửng giúp tạo ra sự riêng tư trong sinh hoạt mà vẫn đảm bảo kết nối gia đình. Không gian sân vườn hoặc hành lang cũng thường được kết hợp để tăng thêm sự thoáng đãng, thư giãn.

Mẫu nhà cấp 4 gác lửng mái thái
Mẫu nhà cấp 4 mái Thái gác lửng mang nét duyên dáng Á Đông, vừa sang trọng vừa mát mẻ, đặc biệt phù hợp với khí hậu nhiệt đới tại Việt Nam. Kiến trúc mái cao giúp điều hòa không khí tốt hơn đồng thời tôn lên vẻ thanh lịch cho tổng thể công trình. Đây là lựa chọn lý tưởng cho những ai yêu thích sự truyền thống pha lẫn hiện đại.

Mẫu nhà cấp 4 có gác lửng mái bằng
Mẫu nhà cấp 4 mái bằng gác lửng thường gắn liền với các phong cách như phong cách điện đại, tối giản và đậm chất kiến trúc đô thị mang vẻ đẹp phóng khoáng và cá tính. Thiết kế này thường không quá cầu kỳ, kết hợp với các mảng kính lớn và ban công mở tạo sự kết nối mạnh mẽ giữa không gian trong – ngoài, đồng thời tận dụng tối đa ánh sáng tự nhiên. Mẫu nhà cấp 4 mái bằng gác lửng thích hợp với các gia đình trẻ, năng động.

Mẫu nhà cấp 4 có gác lửng hiện đại
Những mẫu nhà cấp 4 gác lửng hiện đại gây ấn tượng bởi đường nét kiến trúc sắc sảo, bố cục tối ưu và nội thất tinh giản nhưng đầy đủ tiện nghi. Với lối thiết kế mở, chú trọng ánh sáng tự nhiên, sử dụng vật liệu hiện đại như kính, thép, bê tông,… và sự liên kết giữa các không gian. Mẫu nhà gác lửng này phù hợp với lối sống năng động của thế hệ trẻ và gia đình hiện đại.

Mẫu nhà cấp 4 có gác lửng tối giản
Tinh tế trong từng chi tiết, mẫu nhà cấp 4 gác lửng phong cách tối giản tập trung vào công năng sử dụng và sự thoáng đãng, loại bỏ các chi tiết không cần thiết. Gam màu trung tính, vật liệu hiện đại cùng thiết kế không rườm rà giúp không gian trở nên nhẹ nhàng, thư thái mà vẫn giữ được tính thẩm mỹ cao.

Mẫu nhà cấp 4 gác lửng có sân vườn
Mang hơi thở thiên nhiên vào không gian sống, mẫu nhà gác lửng có sân vườn là lựa chọn lý tưởng cho những ai yêu thích lối sống xanh. Khu vườn nhỏ trước hiên nhà không chỉ tạo điểm nhấn cảnh quan mà còn góp phần điều hòa không khí mang lại cảm giác bình yên và thư thái.

Mẫu nhà cấp 4 gác lửng có ban công
Ban công là điểm nhấn lý tưởng trong các mẫu nhà cấp 4 gác lửng, vừa mở rộng không gian sử dụng vừa nâng tầm thẩm mỹ. Đây có thể là nơi trồng cây, thư giãn hay đơn giản là góc ngắm cảnh đầy thi vị tạo nên một không gian sống tiện nghi, gần gũi thiên nhiên.

Mẫu nhà cấp 4 có gác lửng 4×10, 4×12, 4×16, 4×20
Những mẫu nhà cấp 4 có diện tích 4×10, 4×12, 4×16 thích hợp với các khu đất nhỏ, gia đình ít thành viên. Những mẫu nhà có chiều ngang 4m tuy khiêm tốn nhưng vẫn đảm bảo tiện nghi nhờ cách bố trí thông minh và sự hỗ trợ từ tầng lửng. Dù với diện tích 40m² hay 80m², mỗi thiết kế đều tận dụng tối đa từng mét vuông, sử dụng đồ nội thất đa năng để mang lại cảm giác rộng rãi và tiện nghi cho gia chủ.

Mẫu nhà cấp 4 có gác lửng đẹp 5×12, 5×14, 5×15, 5×16, 5×20
Với mặt tiền rộng 5m, các mẫu nhà cấp 4 có gác lửng diện tích 5×12, 5×14, 5×16, 5×20 giúp gia chủ dễ dàng thể hiện cá tính riêng qua hình khối kiến trúc, hệ cửa, vật liệu và cách phân chia công năng. Phần gác lửng thường được bố trí thêm phòng ngủ hoặc khu làm việc để đảm bảo công năng mà không ảnh hưởng đến tính thẩm mỹ tổng thể.

Mẫu nhà cấp 4 có gác lửng 7x20m
Diện tích rộng rãi 7x20m là điều kiện lý tưởng để tạo nên một không gian sống đẳng cấp, đa chức năng. Mẫu nhà cấp 4 7x20m gác lửng khá được ưa chuộng tại Việt Nam kể cả nông thôn lẫn thành thị. Mẫu nhà này có thể tích hợp từ 3 đến 4 phòng ngủ, phòng khách, phòng bếp + bàn ăn, phòng thờ, gara ô tô,… Phần gác lửng đóng vai trò như một tầng riêng biệt giúp tăng thêm giá trị sử dụng đáng kể.

Mẫu nhà cấp 4 có gác lửng giá 500 triệu
Với chi phí chỉ khoảng 500 triệu, gia chủ hoàn toàn có thể sở hữu một căn nhà gác lửng đẹp mắt và đầy đủ công năng với diện tích khoảng 70-80m2. Các mẫu thiết kế trong phân khúc này thường ưu tiên phong cách đơn giản, tiện nghi, sử dụng nội thất thông minh với đầy đủ các phòng chức năng như phòng sinh hoạt chung, phòng thờ,….

Mẫu nhà cấp 4 có gác lửng giá 600 triệu
Ở mức đầu tư khoảng 600 triệu, mẫu nhà gác lửng sẽ có nhiều lựa chọn hơn về mặt thiết kế và nội thất. Diện tích xây dựng khoảng 80-100m2, với ngân sách hợp lý, gia chủ có thể xây dựng căn nhà tiện nghi, hiện đại, tận dụng tối đa không gian sinh hoạt mà vẫn đảm bảo tính thẩm mỹ và độ bền cao theo thời gian. Mẫu nhà này có thể bố trí đầy đủ các phòng như phòng khách, phòng bếp + bàn ăn, phòng ngủ, nhà vệ sinh, phòng thờ, phòng làm việc,… theo nhu cầu của mỗi gia đình.

Xem thêm: 45+ Mẫu nhà cấp 4 3 phòng ngủ 500 triệu sang trọng, tiện nghi
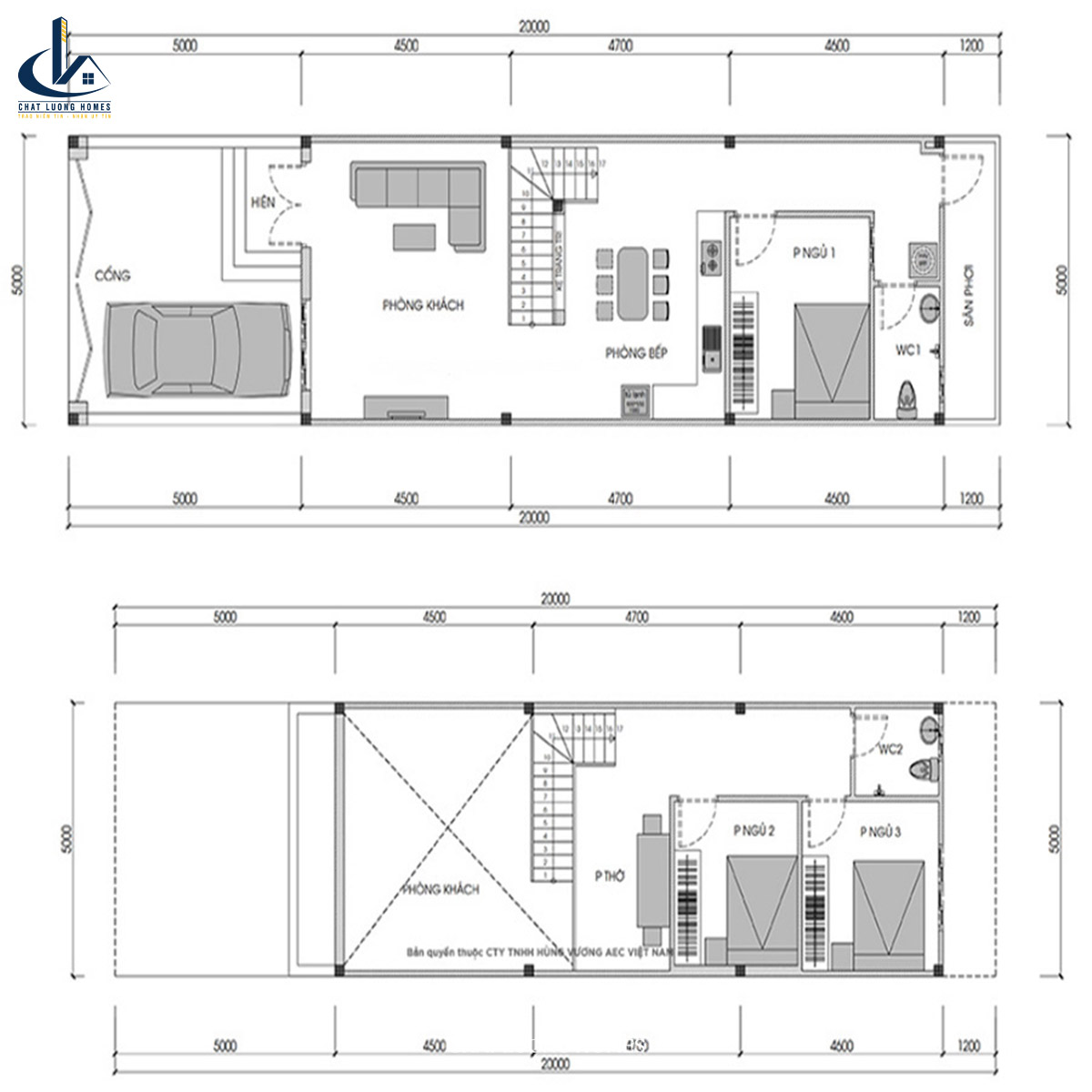
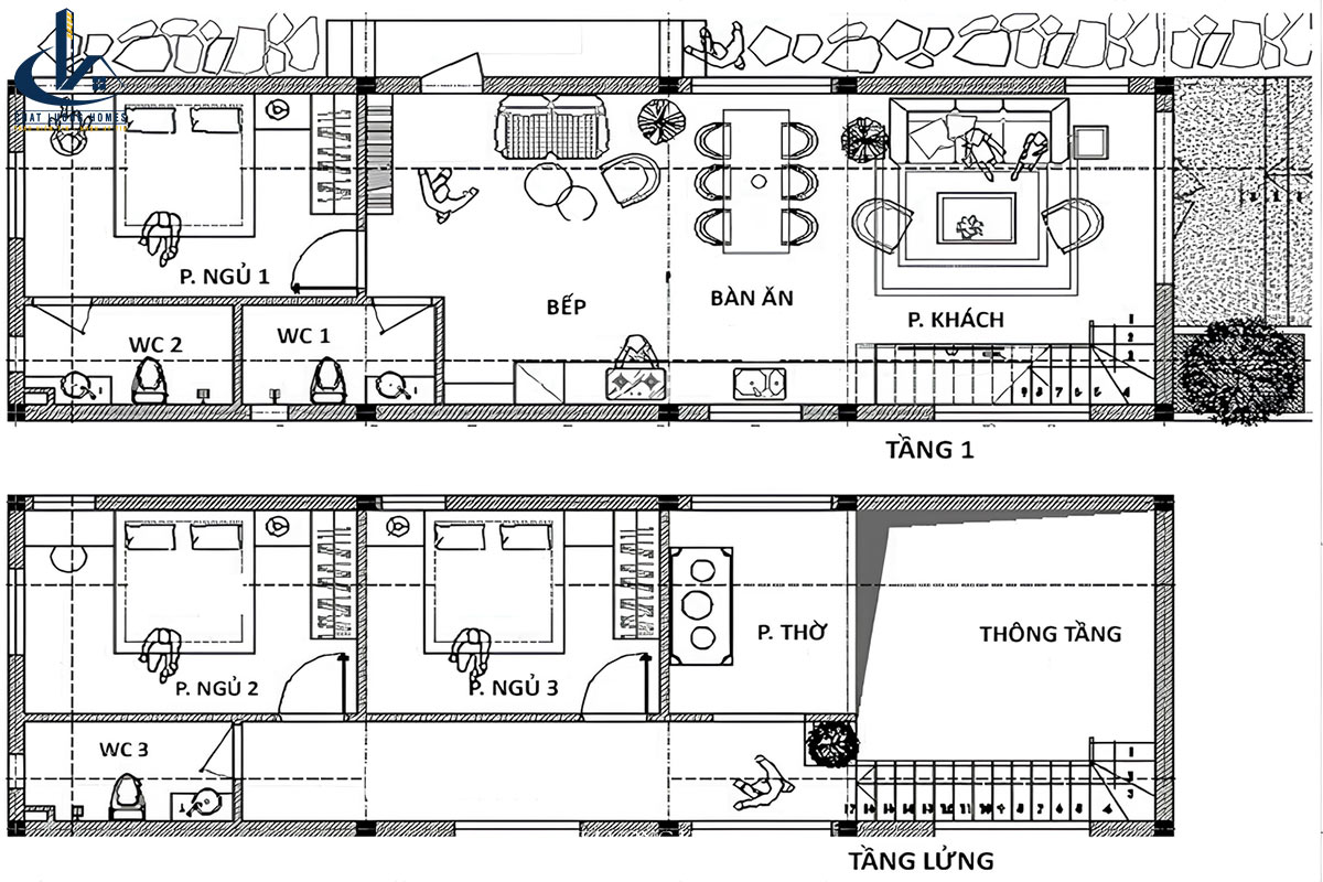
Bản vẽ, phối cảnh nhà cấp 4 có gác lửng xu hướng hiện nay
Những bản vẽ và phối cảnh nhà cấp 4 có gác lửng hiện nay không chỉ đề cao yếu tố thẩm mỹ mà còn tập trung vào công năng và hiệu quả sử dụng không gian. Thiết kế thường theo lối hiện đại, tối giản, kết hợp đường nét kiến trúc tinh tế cùng các gam màu trung tính hoặc sáng nhẹ.
Bản vẽ chi tiết cần thể hiện rõ các khu vực chức năng từ phòng khách, bếp, phòng ngủ cho đến tầng lửng giúp việc thi công được chính xác, tiết kiệm và hạn chế chi phí phát sinh. Phối cảnh 3D cũng đóng vai trò quan trọng giúp gia chủ hình dung tổng thể công trình trước khi xây dựng từ đó điều chỉnh phương án phù hợp với nhu cầu thực tế.






Chi phí xây nhà cấp 4 gác lửng bao nhiêu?
Giá thiết kế kiến trúc xây dựng nhà cấp 4 gác lửng trọn gói phụ thuộc vào nhiều yếu tố như diện tích, phong cách thiết kế, vị trí thi công, chất lượng vật liệu sử dụng và đồ nội thất. Trung bình, mức đầu tư dao động từ 500 triệu đến hơn 1 tỷ đồng cho một căn nhà có kết cấu chắc chắn, đầy đủ tiện nghi. Với mức ngân sách tầm trung, gia chủ vẫn hoàn toàn có thể sở hữu không gian sống đẹp, hiện đại nếu biết tính toán hợp lý. Đặc biệt, việc lựa chọn thiết kế phù hợp và giám sát chặt chẽ trong quá trình thi công sẽ góp phần tối ưu chi phí hiệu quả mà không ảnh hưởng đến chất lượng công trình.
Đơn giá thiết kế nhà cấp 4 gác lửng
| Phong cách | Đơn giá |
| Nhà cấp 4 có gác lửng phong cách hiện đại | 200.000đ/m2 |
| Nhà cấp 4 có gác lửng phong cách cổ điển | 200.000đ/m2 |
| Nhà cấp 4 có gác lửng phong cách tân cổ điển | 200.000đ/m2 |
| Thiết kế nội thất nhà cấp 4 có gác lửng | 200.000đ/m2 |
Đơn giá thiết kế nhà cấp 4 gác lửng
- Đơn giá thi công phần thô: 200.000đ/m2
- Đơn giá thi công trọn gói: 300.000đ/m2
Kinh nghiệm làm nhà cấp 4 có gác lửng tiết kiệm chi phí
Để xây dựng mẫu nhà cấp 4 đẹp có gác lửng tiết kiệm chi phí nhưng vẫn đảm bảo chất lượng, gia chủ cần lên kế hoạch kỹ lưỡng ngay từ đầu. Một số kinh nghiệm thực tế giúp bạn chủ động kiểm soát ngân sách hiệu quả như:
Chuẩn bị bản vẽ thiết kế và tính toán khối lượng vật tư
Lập bản vẽ chi tiết và đầy đủ trước khi thi công sẽ giúp định hình rõ ràng cấu trúc ngôi nhà, tránh phát sinh sai sót trong quá trình thi công. Đồng thời, việc lập bảng khối lượng vật tư cụ thể từ giai đoạn đầu sẽ giúp bạn dự toán chính xác chi phí và dễ dàng kiểm soát tiến độ cũng như chất lượng vật liệu.
Lựa chọn các vật liệu bền với giá cả hợp lý
Lựa chọn vật liệu xây dựng không nhất thiết phải dùng vật liệu đắt tiền, hãy ưu tiên các dòng sản phẩm có độ bền cao, được kiểm chứng thực tế và có nguồn gốc rõ ràng. Các vật liệu nội địa chất lượng tốt hiện nay hoàn toàn có thể đáp ứng yêu cầu về độ bền, tính thẩm mỹ và giá thành cạnh tranh.

Tối ưu sử dụng vật liệu xây dựng
Thay vì thi công toàn bộ bằng vật liệu truyền thống, gia chủ có thể kết hợp với các vật liệu nhẹ như tấm panel hoặc khung thép nhẹ nhằm giảm tải kết cấu, tiết kiệm chi phí vận chuyển và thời gian thi công. Ngoài ra, việc tận dụng vật tư dư thừa hoặc mua theo lô lớn cũng góp phần giảm chi phí một cách đáng kể.
Thiết kế nhà cấp 4 gác lửng
Thiết kế đóng vai trò quan trọng quyết định đến tính thẩm mỹ, công năng và chi phí xây dựng của căn nhà. Để tiết kiệm chi phí mà vẫn đảm bảo tiện nghi, gia chủ nên làm việc với đơn vị thiết kế uy tín, có kinh nghiệm xử lý các mẫu nhà diện tích vừa và nhỏ.
Thiết kế nên ưu tiên không gian mở, kết nối các khu vực sinh hoạt linh hoạt, đồng thời tận dụng tối đa ánh sáng tự nhiên. Tầng lửng cần được bố trí hợp lý để không tạo cảm giác chật chội cho tầng trệt, đồng thời đảm bảo yếu tố thông thoáng và riêng tư cho người sử dụng.
Thi công nhà cấp 4 có gác lửng
Thi công là giai đoạn hiện thực hóa bản vẽ, đòi hỏi sự giám sát kỹ lưỡng và tuân thủ đúng kỹ thuật. Đặc biệt với phần gác lửng, việc đảm bảo độ chắc chắn của kết cấu sàn, cầu thang và hệ khung chịu lực là điều rất quan trọng.
Gia chủ nên lựa chọn nhà thầu có kinh nghiệm với loại hình nhà cấp 4 gác lửng để tránh sai sót kỹ thuật, đồng thời giúp tiến độ thi công được đảm bảo. Việc lựa chọn thời điểm xây dựng phù hợp (tránh mùa mưa) cũng góp phần tiết kiệm chi phí và đảm bảo chất lượng công trình lâu dài.
Các thủ tục pháp lý
Trước khi khởi công, gia chủ cần hoàn thiện đầy đủ thủ tục pháp lý để tránh rắc rối về sau. Bao gồm: xin giấy phép xây dựng, bản vẽ xin phép đúng quy chuẩn, giấy tờ chứng minh quyền sử dụng đất hợp pháp và các thủ tục liên quan tại địa phương.
Việc tuân thủ đúng quy định không chỉ đảm bảo tiến trình xây dựng suôn sẻ mà còn giúp công trình được công nhận chính thức và thuận lợi trong các giao dịch hoặc sang nhượng về sau. Trong trường hợp bạn xây nhà tại khu vực nông thôn hoặc vùng quy hoạch nên chủ động làm việc sớm với cơ quan quản lý để nắm rõ các quy định cụ thể.
Nhà cấp 4 có gác lửng là giải pháp thông minh cho không gian sống tiện nghi, tiết kiệm và giàu tính thẩm mỹ. Với thiết kế linh hoạt, dễ thi công và phù hợp nhiều diện tích đất, đây là lựa chọn lý tưởng cho các gia đình hiện đại đang tìm kiếm một tổ ấm vừa đẹp vừa tiện nghi. Bạn cần tư vấn thiết kế – thi công nhà cấp 4 có gác lửng đẹp, tối ưu chi phí? Hãy liên hệ Chất Lượng HOMES qua hotline 0902 430 537 để được hỗ trợ nhanh chóng:

